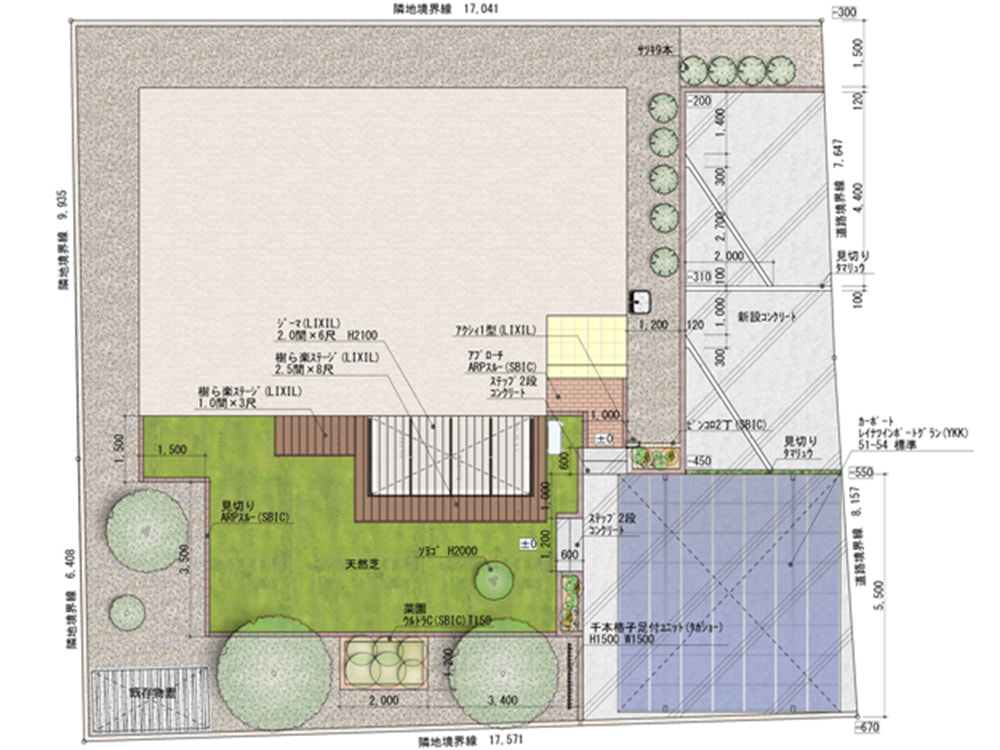
※隣地境界工事費・植栽工事費はプランに含みません
| 工事内容 | 主な仕様・素材 | 商品名 |
|---|---|---|
| 駐車場4台 | 土間コンクリート施工 | |
| 目地タマリュウ | ||
| カーポート | 2台用 | YKK:レイナツインポート |
| アプローチ | インターロッキング | エスビック:オールラウンドペイブ・スルー |
| 土留め | 化粧ブロック | エスビック:ウルトラC |
| 家庭菜園 | 化粧ブロック | エスビック:ウルトラC |
| 花壇 | 自然石 | エスビック:ピンコロ2丁 |
| 門柱・門袖 | 機能門柱 | LIXIL:アクシィ1型 |
| 目隠しフェンス | 縦格子 | タカショー:千本格子足付ユニットH1800 |
| 建物周り | 6号砕石+防草シート | |
| 芝生 | コウライ芝 | |
| 芝生見切り | インターロッキング | エスビック:オールラウンドペイブ・スルー |
| シンボルツリー | H=2000 | ソヨゴ |
| 人工木デッキ | 2間×8尺+1間×3尺 | LIXIL:樹ら楽ステージ |
| ガーデンルーム | 2間×6尺 | LIXIL:自然浴ジーマ |
