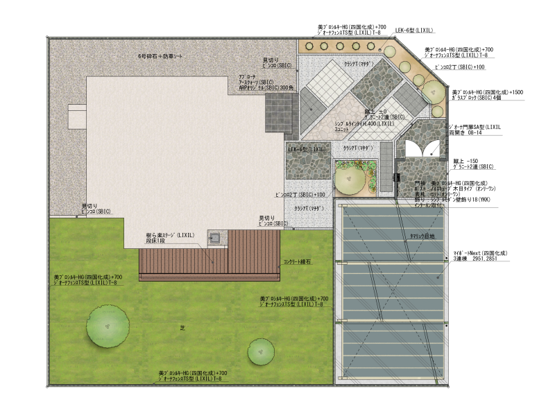
※隣地境界工事費・植栽工事費はプランに含みません
| 工事内容 | 主な仕様・素材 | 商品名 |
|---|---|---|
| 駐車場3台分 | 土間コンクリート施工 | |
| 目地:タマリュウ | ||
| カーポート | 3台分 | マイポートNext(四国化成) |
| アプローチ・ステップ | 天然石貼り | アースクォーツ(SBIC) |
| アプローチ | インターロッキング300角 | ARPオリジナル(SBIC) |
| アプローチ周り | 玉砂利 | クラシアT(マチダ) |
| 門袖・門柱 | 下地ブロック+塗壁 | 美ブロシルキーHG(四国化成) |
| アクセント | シンプルモダン壁飾り(YKK) | |
| ガラスブロック | たまゆら(SBIC) | |
| 表札 | LEDライトサイン | コット(オンリーワン) |
| ポスト | 前入れ後取出し | ノイエキューブ木目(オンリーワン) |
| 門扉 | 両開き門扉 | ジオーナ門扉SA型(LIXIL) |
| 花壇 | 自然石 | ピンコロ2丁(SBIC) |
| 蹴上 | 自然石 | グラニート2連(SBIC) |
| ラインライト | シンプルラインライトH400(LIXIL) | |
| ポールライト | LEK-6型(LIXIL) | |
| 土留め・境界 | 化粧ブロック+塗壁 | 美ブロシルキーHG(四国化成) |
| フェンス | アルミ形材H800 | ジオーナフェンスTS型(LIXIL) |
| 建物周り | 6号砕石+防草シート | |
| 砂利止め | 自然石 | ピンコロ(SBIC) |
