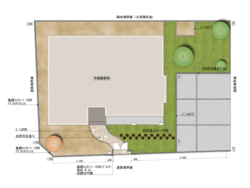
※隣地境界工事費・植栽工事費はプランに含みません
| 工事内容 | 主な仕様・素材 | 商品名 |
|---|---|---|
| 駐車場 3台 | 土間コンクリート施工 | |
| 見切り6号砕石 | ||
| アプローチ | 自然石乱張り | TOYO:オークルストーン |
| 見切りピンコロ | TOYO:ピンコロ石90角 | |
| 枕木風コンクリート | TOYO:T.Yスリーパースタンプ300Φ | |
| 道路境界線 | 化粧ブロック | エスビック:リブロックF |
| フェンス | アルミ形材 | TOEX:プリレオR5型 |
| 門扉 | 両開き | TOEX:プリレオR5型 |
| 門扉・門袖 | 化粧ブロック+笠木 | エスビック:リブロックF |
| 表札 | 天然石材 | |
| ポスト | 口金タイプ | TOEX:N-1型 1B15 |
